/media/crossbase/fot_pro_per_0780g__sall__ainfs__v1.jpg_lj_366x382.jpg
/media/crossbase/zei_pro_sch_0780g__sall__ainfs__v2.jpg_lj_366x382.jpg
/media/crossbase/fot_pro_per_0780g__sall__ainfs__v1.jpg_lj_366x382.jpg
/media/crossbase/zei_pro_sch_0780g__sall__ainfs__v2.jpg_lj_366x382.jpg

NIRO Drosselventil, ohne Entleerung, AG

Figur 078 0G

  • zum hydraulischen, fixen Strangabgleich
  • mediumberührte Metallteile aus Edelstahl
  • wartungsfreie Spindelabdichtung mit selbstfettender EPDM-Lippendichtung

Produktmerkmale

  • zum hydraulischen, fixen Strangabgleich
  • mediumberührte Metallteile aus Edelstahl
  • wartungsfreie Spindelabdichtung mit selbstfettender EPDM-Lippendichtung
  • EPDM-Sitzdichtung
  • Außengewinde für flachdichtende Verschraubungen
  • totraumfrei
  • mit schwarzem Handrad
  • absperrbar bei gleichbleibender Einstellfixierung
  • Drosselstellungsanzeige durch Justierbügel
  • ohne Entleerung (keine Entleerung nachrüstbar)
  • mit Offenstellungsanzeige
  • verschleißfester Ventilsitz aus Edelstahl

Normen & Zulassungen

  • DVGW-Zulassung
  • SVGW-Zulassung
  • nach UBA KTW BWGL
  • nach UBA BWGL Metalle
  • bis DN 32 Schallschutzzulassung nach DIN EN ISO 3822 Klasse 2
  • DIN EN 1213
  • ÜA-Reg.-Nr. R-15.2.3-21-17049, WIEN-ZERT

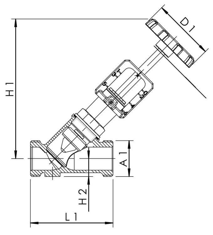
Technische Daten

  • Druckstufe PN 16
  • max. Betriebstemperatur 110 °C
/media/crossbase/zei_pro_sch_0780g__sall__ainfs__v2.jpg_lj_404xy.jpg
Bestellnr. DN A1 D1
(mm)
H1
(mm)
H2
(mm)
L1
(mm)
Zeta kvs
(m³/h)
kg
0780G01500 15 G 3/4 60 100 17,5 70 2,3 5,9 0,56
0780G02000 20 G 1 60 120 19 78,5 1,6 12,5 0,71
0780G02500 25 G 1 1/4 70 140 21 97 1,4 21,3 1,16
0780G03200 32 G 1 1/2 70 165 24 110 1,1 38,7 1,52

CAD Modelle & Kennlinien

Downloads

Datenblatt
Dateityp
Produktdatenblatt
pdf
Anleitung
Dateityp
Einbau- und Bedienungsanleitung Drosselventil
pdf (1,9 MB)
Prospekte
Dateityp
Gebäudetechnik Armaturen und Systeme
pdf (15,76 MB)
Prospekt Regulierarmaturen
pdf (1,93 MB)
Technische Informationen
Dateityp
Produktdaten nach VDI 3805, Blatt 17
zip (0,1 MB)
Ersatzteilhandbuch 2024
pdf (4,88 MB)
Durchflussdiagramme NIRO Drosselventil
pdf (0,04 MB)