/media/crossbase/fot_pro_per_88527020__sall__ainfs__v1.jpg_lj_366x382.jpg
/media/crossbase/zei_pro_sch_88527020__sall__ainfs__v1.jpg_lj_366x382.jpg
/media/crossbase/fot_pro_per_88527020__sall__ainfs__v1.jpg_lj_366x382.jpg
/media/crossbase/zei_pro_sch_88527020__sall__ainfs__v1.jpg_lj_366x382.jpg

CLASSIC VAV afspærrings-vandmåler-kombination HWW-model 153 mm

Figur 885 27 020

  • Medieberørte metaldele i afzinkningsfrit og korrosionsbestandigt rødgods, modstandsdygtige over for aggressivt vand
  • med universelt multi-vandmålerhus G 2 koaxial iht. HWW-model
  • består af VAV full flow-afspærringsventil og WZ-hus med indpudsnings- og overstrømskappe

Produktegenskaber

  • Medieberørte metaldele i afzinkningsfrit og korrosionsbestandigt rødgods, modstandsdygtige over for aggressivt vand
  • med universelt multi-vandmålerhus G 2 koaxial iht. HWW-model
  • består af VAV full flow-afspærringsventil og WZ-hus med indpudsnings- og overstrømskappe
  • til montering af en koldt- eller varmtvandsmålekapsel
  • Monteringsdybde variabel inden for vandmålerens monteringsmål
  • Plastskaft, som kan afkortes trinløst
  • Indvendigt gevind
  • Intet dødrum
  • påstøbt monteringsribbe til ekstraudstyret monteringsfod
  • kan kun kombineres med planmonteringsdele

Standarder og godkendelser

  • Ventil(er) med DVGW-godkendelse
  • Kunststofdele med KTW- og W 270-godkendelse
  • iht. UBA-vurderingsgrundlag
  • Ventil(er) med støjbeskyttelsesgodkendelse iht. DS/EN ISO 3822 klasse 1
  • ÜA-Reg.-Nr. R-15.2.3-21-17048, WIEN-ZERT

Tekniske data

  • Stikmål 153 mm
  • Tryktrin PN 10
  • Maks. driftstemperatur 70 °C
  • Kortvarig spidstemperatur 95 °C
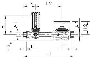
/media/crossbase/zei_pro_sch_88527020__sall__ainfs__v1.jpg_lj_404xy.jpg
Ordrenr. DN A1 H1
(mm)
H2
(mm)
H3
(mm)
L1
(mm)
L2
(mm)
L3
(mm)
T1
(mm)
kg
8852702000 20 Rp 3/4 110 76 35 296 153 73 16,3 1,54

CAD-modeller & diagrammer

Ordrenr. DN CAD-model Karakteristisk kurve
8852702000 20 Vis 3D-data Vis karakteristikkurve

Downloads

Datablad
Filtype
Produktdatablad
pdf
Teknisk information
Filtype
Tryktabsdiagram CLASSIC VAV afspærring-vandmålerkombination
pdf (0,02 MB)